【豪宅地块】伦敦富商隐居都市田园的梦想居所:圣乔治山庄(新建地块)
作者: 发布于:2017/4/26 4:07:04 旺地靓盘

图说:已经获得审批的设计效果图
圣乔治山庄私人别墅改建新建地块位于伦敦西南部萨里郡圣乔治山顶。当前这个区域的新建别墅均高于1000万英镑,个别老旧别墅均被认为是最佳的新建地块,低于500万英镑的极为稀缺。
今天介绍的这个地块,是伦敦外环高速(M25)以内奇缺的豪宅别墅新建地块,已经获得规划审批,售价为450万英镑。(如需了解更详尽的细节信息和楼书,敬请微信回复您的“圣乔治山庄+姓名+手机+电子邮箱”,小编将及时发送给您。)

图说:地块当前旧物业实景图。
20世纪初,当伦敦富商们开始寻求便捷通行伦敦的理想田园居所时,拥有优美环境和厚重历史文化的萨里郡成为首选。在这些寻求都市恬静的富商中,包括圣乔治山居的建造者W G。1911年,他购买了圣乔治山的土地,建造了这栋“伦敦富豪隐居田园”的产物,也成就了这栋目前全英除伦敦地区以外最受瞩目的私人别墅区之一。

图说:目前已经获得审批的规划设计效果图。
占地面积超大的豪宅外观看上去依旧有旧时富商的贵族气派,乳白色建筑外观加盆景,将西方对称性建筑美学发挥的淋漓尽致。这套气派豪宅占地面积约1,181平方米,在节能认证(EPCs)的七级中达到了第二等级-B级别,十分难得!

实景图说:圣乔治山庄的私密性极好,曲径通幽的正门


图说:正门进入的前庭院
按照目前获批的规划设计:除了外观气派,这栋别墅对内部的装潢也将是十分讲究的,许多高档定制装饰品和家具。整体结构为三层独栋别墅,拥有现代典雅的超大客厅和相同配色的餐厅及厨房。内部色调以白色和米白色为主,与建筑整体风格一致,整体看上去简约大气,隐藏在纯净气息背后的是价格不菲的家居配饰、讲究的灯光和宽阔空间,不彰显不外显出尽显奢华。
别墅规划配置智能家电,每一处的装修用材都用最高品质的材料。在注意不到的细节上,整体装潢风格简洁明快,如一位干净优雅的年轻贵族,举手投足涵养极好。

实景图说:草坪绿茵花木簇围的后院
按照新主人的喜好,规划设计的宽大的客厅,别墅内含5间豪华卧室,6间会客厅,6间洗手间,都可按照自己喜欢的风格和用材灵活调整。二楼观景露台视野极佳,露台周边采用透明钢化玻璃,能最大程度的与自然融合并且最好的观赏园中景色。
除此之外,还有娱乐设施可供休闲娱乐使用。为了配合男女主人的不同喜好,设计师在设计之时匠心独具的安排了超大酒吧间和衣帽间,供储藏美酒和收纳衣帽,并在这两处的灯光上非常用心,除了安装射灯外还调整了角度和光线强弱,整体奢华气派十足。

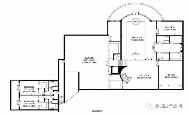
该别墅规划设计的另一个特点是,地下一层有一处令人惊叹的SPA水疗中心,室内游泳池、健身房、洗浴桑拿等设施应有尽有。该层还有一个大型的休息娱乐房间,设备齐全的家庭电影院,酒吧区和两间客房可供休息。





图说:已经获批的规划设计户型图和庭院布局图。
成为一处令人叹为观止的私人山居,当然不止拥有豪华气派的别墅,还有有一处相得益彰的花园。
圣乔治山居得天独厚的地理位置可以轻松坐拥整座圣乔治山的美景,自带花园中的园中喷泉和雕塑,也全是百年前充满历史感的欧式模样。整个园子满眼绿意,生机盎然。
最后,圣乔治山还有一处圣乔治高尔夫球场,供山头的业主们私享,在自己家门口打高尔夫的愿望轻松实现。

地块和规划的别墅基本情况:
地块面积:2英亩
地址:St George'sHill, Weybridge, Surrey, KT13
产权:永久产权
卧室:5 (另有两间客房/佣人卧室套间)
会客厅:6
卫浴间:6
室内游泳池、健身房,典藏酒窖等
轨道交通:
圣乔治山提供安全和隐蔽的居住环境,同时也提供便利的轨道交通。距离Weybridge车站仅1.5英里,距离Byfleet&NewHaw车站1.9英里,距离Walton-on-Thames车站2.3英里。距离伦敦市中心24英里,由A3公路驾车至伦敦市中心40-60分钟,距离伦敦希思罗机场13英里,由M25公路至伦敦希思罗机场仅20分钟车程!
教育资源:
萨里区是英国公立、私立学校资源最丰富优质的区域,各类亲子生活教育资源应有尽有,不乏国际顶级水平机构。
休闲娱乐:
附近的Esher和Cobham均有大型购物中心可满足购物、餐饮和娱乐的需求。距离伦敦西南设施齐全的购物小镇金斯顿,车程15-20分钟。
社区文化:
Weybridge是英格兰萨里郡的一个小镇。全世界最宜居的区域之一,也是英国平均房价最高的地段之一。房地产价格远高于全国平均水平,英格兰东南部伦敦以外十条最昂贵的街道中,有六条来自Weybridge,是英国名副其实的富人区。许多音乐家、演员、体育明星和富商都曾居住于此。
上一篇:【英伦豪宅】300万镑待售、450年历史、1万平土地…然而任何数字都无法定义这座农庄的现代魅力
下一篇:无
人物访谈 Interview往期访谈
热门文章 HOT
购房知识 Knowledge
-
Job Title: Events Manager 招聘启事
2024-07-25
-
Job Title: Marketing Executive 招聘启事
2024-07-25
-
占地33英亩, 15世纪城堡带酒窖/私人高尔夫球场230万镑待售, 还有机会获贵族头衔
2024-01-26
-
英儿童肥胖率急剧恶化. 英央行加快电子货币推行计划!汽车行业强劲增长
2024-01-25
-
世卫组织发出麻疹疫情警告. 五年期贷款利率低至3.84%. 英国初创企业创新高
2024-01-24

首页


